天友作品 | 詩意棲居,東方雅韻——鳳凰谷·樂活小鎮一期

知者樂水,仁者樂山;知者動,仁者靜;知者樂,仁者壽。
——《論語》雍也篇

本項目為鳳凰谷·樂活小鎮一期,鳳凰谷·樂活小鎮屹立于新鄉市山、水、林、田、湖、草一體化生態城,占位新鄉市后花園,位于鳳凰山下、大運河畔、生態一體化新城核心區域。小鎮積極倡導健康、環保、可持續的生活方式,以及自然、精致的生活態度,追尋生活本源。
小鎮整體規劃中,將打造五大核心板塊即旅居養生園、文化創意園、婚慶產業園、運動休閑園、特色農業園,五大產業融合共生,同時配備完善的基礎設施及配套,成為多業態發展的南太行休閑旅居圣地。本項目位于小鎮的旅居養生園板塊。

項目整體規劃分析圖

小鎮主入口
項目距離新鄉市中心15千米,距離鳳泉區政府4.2千米,項目環繞愚公泉、鳳凰山景區,南側為云龍山兒童公園及南水北調河,具有優越的生態宜居潛力,其背山面水的風水格局更是本項目得天獨厚的地理優勢及環境資源優勢。項目住宅規劃用地總建筑面積約16.5萬平方米,包含商業、住宅、幼兒園、鄰里中心等,住宅產品以洋房和低層住宅為主要類型。

項目規劃分布圖

一期項目鳥瞰實景圖

知者樂水,仁者樂山。臨水而居,自古以來都是人們追尋自然的訴求。場地北高南低,南北高差達14米,設計利用高差形成臺地院落、臺地別墅的理念,使空間層次豐富,景觀視線延伸,洋房區形成“慢行生態谷”的特色景觀體驗;低層住宅區自北向南從鄰里中心到商業地塊酒店,以一條溪流貫穿始終,緩緩而下,打造出“流水別墅”的設計理念,私享生態景觀,遠離繁城與喧囂,在此感受一份靜謐。




住宅規劃形態靈活曲折,富有韻律。低層住宅區與洋房區被生態谷和溪流分成若干組團,分區明確又不乏緊密聯系。

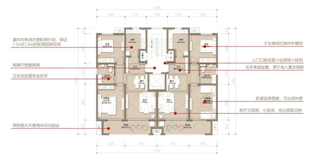
得天獨厚的地理優勢及環境資源優勢為小區提供了便捷的交通和優良的自然環境,通過對老年人群體心理和生理研究,我們在規劃布局、建筑、戶型等方面進行適老化精細化設計。在規劃上分區明確,功能完善,以低多層建筑為主,在所有住宅建筑及配套設施中設有電梯,在所有區域布置無障礙步行道、無障礙防滑坡道等。

適老化戶型設計

社區鄰里中心
社區配有康娛設施——鄰里中心,內設有社區圖書館、社區食堂、老年大講堂、老年康復健身室、老年活動室以及休閑茶座等,保證老年人的身心健康;景觀上結合慢行生態谷中的步行園路、流水別墅水系景觀、健身和養老服務設施場地、四季分明的植被綠化、人性化的導視系統等,共同打造康養花園社區;在空間規劃上,從建筑公共空間、室內空間、便捷設施等方面充分考慮了老年人的居住體驗。

通過海綿城市建設,綜合采取“滲、滯、蓄、凈、用、排”等措施,將70%的降雨就地消納和利用,即年徑流總量控制率不低于70%。規劃注重可持續雨水管理,通過收集凈化雨水來沖洗廣場、停車場,澆灌綠地和為景觀水體補水;通過綠色基礎設施與社區開放空間、道路、建筑和水景觀進行整體性規劃設計,減少雨水設施的占地面積和成本,提高雨水系統的總體效益。

海綿城市方案分析圖



采用新亞洲及中式建筑風格,并結合漢唐傳統建筑風格特點,通過對傳統文化的理解和提煉,將現代元素與傳統元素相結合,以現代的審美需求來打造富有傳統的建筑韻味。







外立面整體采用三段式處理手法,由石材、真石漆、深灰瓦等作為立面的主要裝飾材料,增加建筑的莊重感。中式錯落的大挑檐屋頂、以及墻面浮雕的中式元素,表達對清雅含蓄、端莊豐華的東方精神境界的追求,體現歷史風貌特點。

鳳凰谷樂活小鎮一期項目通過簡潔精煉的建筑語言,描繪了具有中式雅致內涵的詩意居所。最大化的保留了原生態景觀,以綠色技術實現天然能源的合理循環,讓建筑與自然進行有機對話,以綿邈沉麗的生態景致,勾勒出靜謐、閑適的山水庭院。攬一景之芳華,筑一城之樂居。
項目名稱:鳳凰谷樂活小鎮(云龍山)一期
項目規模:16.5萬㎡
業主單位:誠城集團
設計單位:天友設計集團地產事業部鄭州分公司
設計內容:建筑設計
項目負責人:葛超
設計團隊:李濤、張成有、仝鎖、胡明月
設計時間:2017年
建成時間:2021年
景觀設計:深圳市城市空間規劃建筑設計有限公司
項目攝影:心造文化